Town Homes
.

 

PROPERTY DETAILS

STATUS

Currently accepting reservations, only 3 units available. Reserve yours today.

11th AVENUE TOWN HOMES

3 Luxury Town Homes in Ybor City 2412 E 11 Avenue.

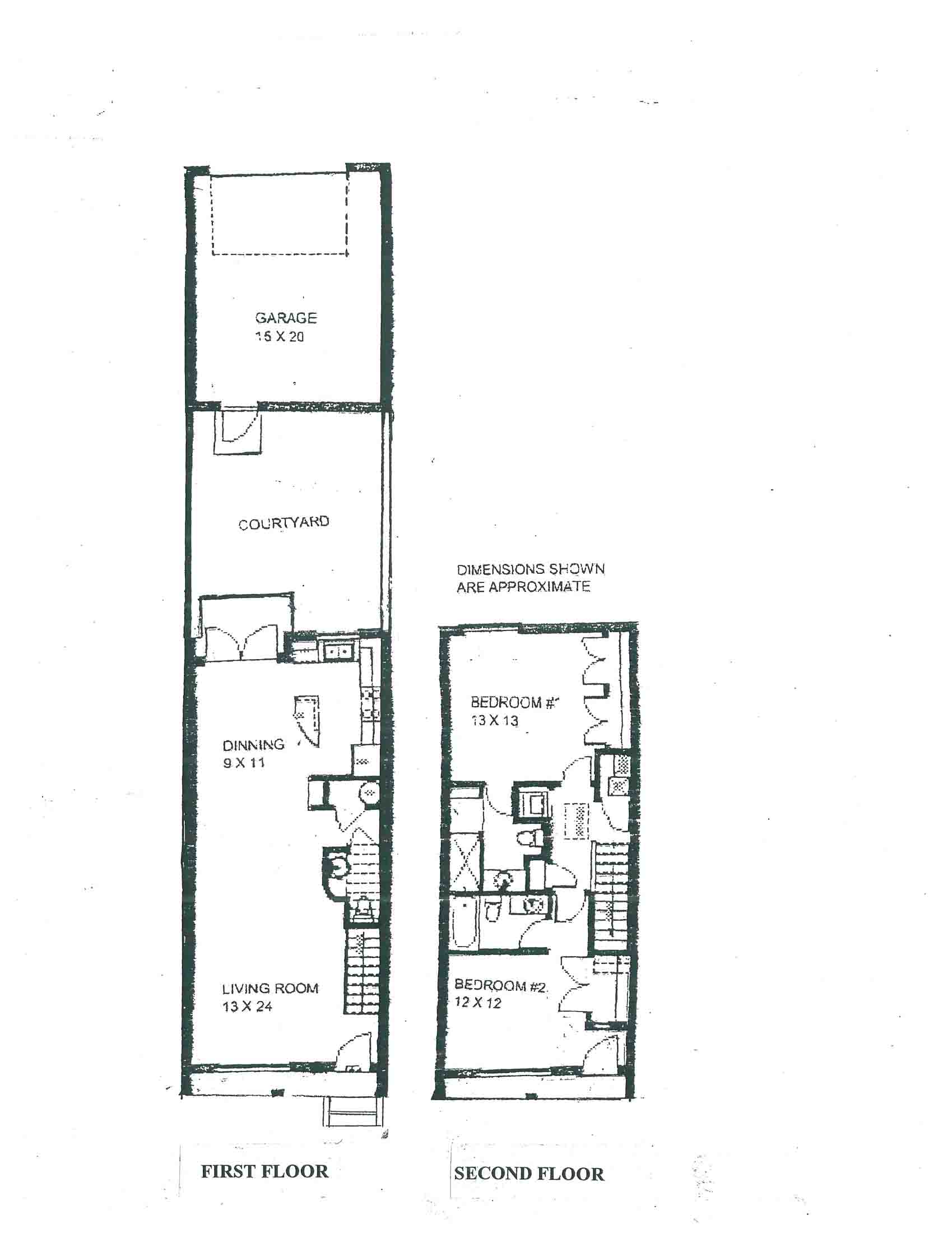
FLOOR PLAN

 



 

© 2002 RealVestors.com inc. All rights reserved